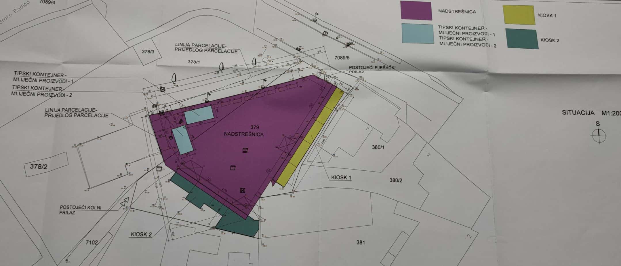
Novi veliki planirani projekt u Murskom Središću je uređenje gradske tržnice. Samo Mursko Središće ima jako dugu tradiciju sajmovanja i tržničnih dana, konačno, samo je mjesto dobilo naziv po sajmu srijedom, a najveći godišnji sajam bio je na spomendan sv. Ladislava, što su danas i Dani grada. Gradska tržnica trenutno se nalazi na otvorenom i prostori nisu zadovoljavajući za suvremene potrebe građana, prodavača i lokalnih OPG-ova, pa je osmišljen projekt uređenja tržnice. S najavom mjere 7.4.1. još se početkom godine odlučilo napraviti projektnu dokumentaciju s kojom bi se moglo aplicirati na natječaj. Početkom veljače krenulo se u pribavljanje ponuda i nakon ispitivanja tržišta najpovoljnija ponuda za izradu projekta bila je ponuda tvrtke OGP d.o.o. iz Preloga u visini od 52.500,00 kuna. Projekt je obuhvaćao izradu glavnog projekta potrebnog za ishođenje građevinske dozvole i gradnju te 3D vizualizaciju. Danas je gradonačelniku Draženu Srpaku prezentiran projekt, a uskoro će se ishoditi i građevinska dozvola i izraditi kompletan troškovnik. Uređenjem gradske tržnice čitav centar Murskog Središća poprimio bi novi izgled, a lokalni trgovci i OPG-ovi dobili bi reprezentativno mjesto za prodaju svojih proizvoda. Pošto je prostor natkriven, prikladan je i za održavanje tradicionalnih ljetnih manifestacija bez obzira na vremenske uvjete.

Slični veliki infrastrukturni projekti, poput aglomeracije, uvođenja širokopojasnog interneta, saniranja odlagališta otpada realiziraju se kroz apliciranje na natječaje fondova Europske unije. Kada je natječaj raspisan, potrebno je imati spremnu natječajnu dokumentaciju, pa je samo planiranje i pripremu za projekt potrebno sprovesti prije nego je natječaj uopće raspisan. Kako je nedavno i službeno najavljeno raspisivanje mjere 7.4.1., Grad Mursko Središće će kroz tu mjeru pokušati realizirati ovaj projekt. Za sredstva iz europskih fondova ne postoji garancija i potrebno je napisati izvrstan projekt kako bi bio izabran za financiranje. Grad Mursko Središće već ima puno iskustva sa sličnim projektima i vjerujemo da će se realizirati i ovaj. Na taj način proračun Grada Mursko Središće oslobađa se za potrebe građana – za povećanje sufinanciranja dječjeg vrtića, za povećano financiranje udruga, dodatne pogodnosti za osnovnoškolce, srednjoškolce i studente, za dodatno ulaganje u kulturu i sport, razvoja turističkih sadržaja, interpretacijskih centara i muzeja….




